PLAN間取り
Fタイプ:リビング・ダイニング
閑静な住宅地を望む住戸[南西向き]
からの眺望
昼景

夕景

※Cタイプ403号室からの眺望(2026年4月撮影)。眺望は将来にわたり保証されるものではございません。
全邸角住戸・
6つのプランバリエーション

EAST

-
印刷するEAST
BTYPE
2LDK
- ■専有面積/54.69㎡(約16.54坪)
- ■バルコニー面積/6.65㎡(約2.01坪)
- ※トランクルーム/1階共用部に設置
暮らしやすさを整えた、機能的な住空間。
- 家具のレイアウトがしやすい、すっきりとしたLDK設計でムダのない空間に。
- 南面バルコニーに面した、採光と通風に優れた住まい設計。
- 広々とした玄関と大容量の下足箱を確保。




-
印刷するEAST
ATYPE
2LDK
- ■専有面積/54.33㎡(約16.43坪)
- ■バルコニー面積/4.53㎡(約1.37坪)
- ※トランクルーム/1階共用部に設置
暮らしやすさと収納力を兼ね備えた、整った住空間。
- 衣類や生活用品をまとめて仕舞える大型収納のウォークインクロゼットを配置
- リビング・ダイニングは家具レイアウトがしやすい、デッドスペースの少ないスクエアな空間設計。
- リビング・ダイニングと洋室2の間仕切りドアを開放すると約14帖超のゆとりの空間に。




-
印刷するEAST
CTYPE
2LDK
- ■専有面積/55.62㎡(約16.82坪)
- ■バルコニー面積/7.65㎡(約2.31坪)
- ※トランクルーム/1階共用部に設置
2WAY動線のキッチンが快適な空間を演出。
- キッチンは2箇所から出入り可能で家事仕事がスムーズな快適動線。
- リビングと洋室2は開放感を感じる南面にバルコニーを配置
- 適所に収納を設け、すっきりと整った室内環境を保ちやすい設計。









WEST

-
印刷するWEST
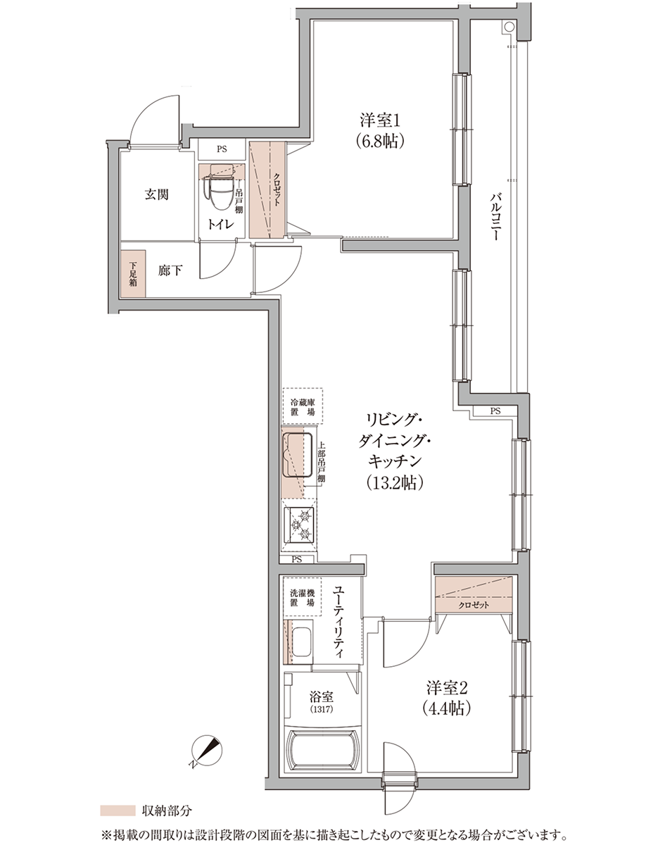
FTYPE
2LDK
- ■専有面積/54.43㎡(約16.46坪)
- ■バルコニー面積/6.50㎡(約1.96坪)
- ※トランクルーム/1階共用部に設置
のびやかな広さが、日常にゆとりと開放感をもたらす空間。
- 約13帖超のLDKが、家族それぞれの時間を包み込むゆとりの空間。
- 南面採光のリビングで、明るくあたたかな生活シーンを育む設計。
- 洋室2は通風と明るさを意識した二つの窓を配した2面採光。




-
印刷するWEST
DTYPE
2LDK
- ■専有面積/54.79㎡(約16.57坪)
- ■バルコニー面積/6.00㎡(約1.81坪)
- ※トランクルーム/1階共用部に設置
LDのゾーニングと洋室の独立性が生む、快適空間。
- リビング・ダイニング・キッチンは約14帖超のゆとり空間。
- 独立感あるキッチンスペースと家具レイアウトしやすいリビング・ダイニング。
- 洋室2には壁一面にクロゼットを配置。




-
印刷するWEST
ETYPE
2LDK
- ■専有面積/55.14㎡(約16.67坪)
- ■バルコニー面積/3.63㎡(約1.09坪)
- ※トランクルーム/1階共用部に設置
無駄のない動線で、暮らしに軽やかさが生まれる住空間。
- 開放感あるキッチン空間と使い方広がるワイドリビング・ダイニング。
- 各居室は家具レイアウトに配慮した空間設計。
- 各洋室にクローゼットを配置し、水まわりにも収納スペースを確保。







※掲載の写真はモデルルームFタイプ(2026年2月撮影)・Bタイプ(2025年11月撮影・2026年1月閉鎖済)を撮影したものです。また、一部オプション仕様です。
※家具・小物等は価格に含まれておりません。
※掲載の間取りは設計段階の図面を基に描き起こしたもので変更となる場合があります。
お問い合わせは
「アイムテラス福住」販売センター
0120-121-109
営業時間/10:00~18:00
※火・水定休(祝日を除く)



