戸建リノベーション
東区 T様邸
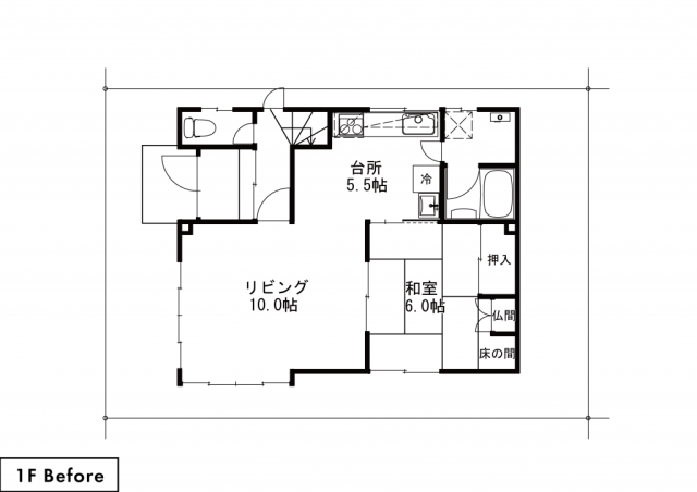
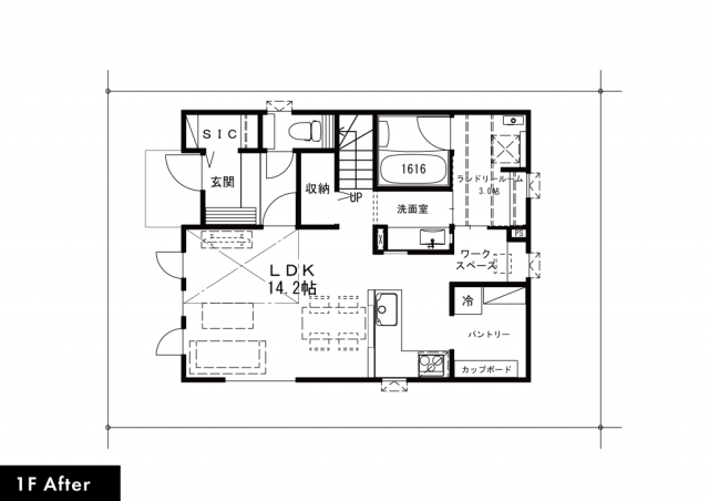
一戸建てのリノベーション。
リビングとキッチンが別空間になっていた既存の間取りから対面キッチンに変更しリビングが見渡せるようになりました。
1階は洗面室を中心にランドリルームからワークスペース、キッチンへと繋がる家事のしやすさを考えた回遊動線。
2階にいても吹抜けから自然と繋がれるあたたかく明るい暮らし。
DATA
| 物件名 | 東区 T様邸 |
|---|---|
| 家族形態 | ファミリー |
| 構造 | 木造2階建て |
| 築年月 | 1984年7月 |
| 施工 | 2024年4月 |
| 延床面積 | 91.91㎡ |
| 施工内容 | フルリノベーション |






































