マンションリノベーション
モデルルーム自衛隊前駅
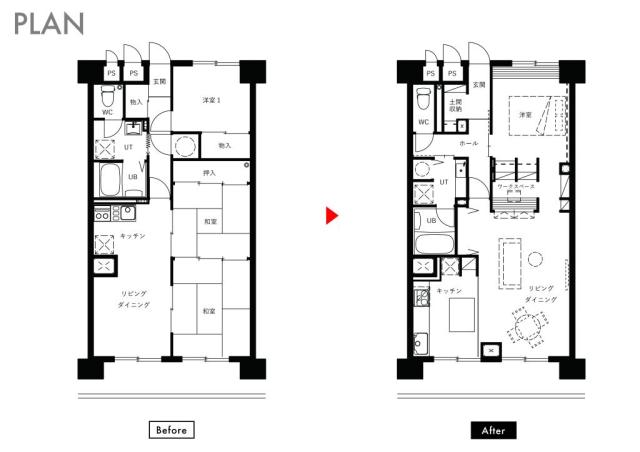
築47年の賃貸マンションの1室をリノベーション。
リビング~ワークスペース~寝室がスムーズに回遊できる動線にリビングから寝室への扉を付けないことで
薄暗かった寝室まで光が入り風通しが良い空間になりました。
内装はグレージュで優しく上品にモダンな雰囲気に仕上げ1年を通して気持ちよく過ごすことができます。
リノベーション空間をお気軽にご体験ください。
DATA
| 物件名 | モデルルーム自衛隊前駅 |
|---|---|
| 構造 | RC造 |
| 築年月 | 47年 |
| 専有面積 | 61.48㎡ |
| 改修竣工日 | 24年12月 |























